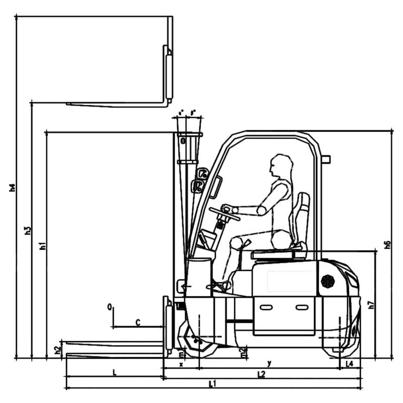
Električni 4-direkcionalni čeoni viličar ECV16CD_ECV20CD:
- nosivost:
- ECV16CD – 1600kg
- ECV20CD – 2000kg
- visina podizanja: 3300/3700/4700/5000/5400 mm
- kabine:
- bez kabine
- polukabina
- kabina sa grijanjem
- visina spuštenog stupa: 2090mm
- električni pogon
- mogućnost kretanja naprijed/natrag i bočno zahvaljujući dvomotornom pogonu i dvostrukom sustavu upravljanja
- niska razina buke upravljačkog sustava i motora, bez emisija
- napredni AC sustav bez održavanja
- operater ima instantni pristup informacija o stanju viličara preko višenamjenskog zaslona koji prikazuje snagu baterije, broj radnih sati, greške i alarm
Električni 4-direkcionalni čeoni viličar nudi širok raspon prednosti, što ga čini popularnim izborom za tvrtke koje traže održiva i isplativa rješenja za svoje potrebe dizanja i transporta.
Ako vas zanima sva oprema i strojevi za manipuliranje teretom, posjetite naše trgovine:















